|
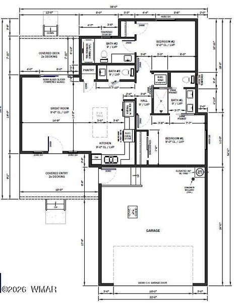
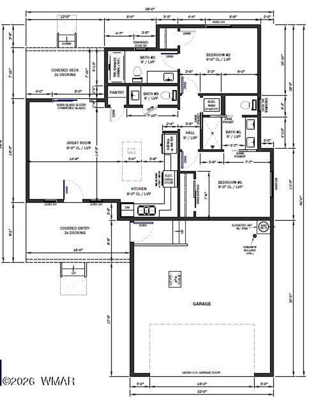
UNDER $300,000 for a brand new home is an unbelievable opportunity. The future of Show Low is in Show Low Bluff. This home is to be built using the buyers financing. The home features two primary suites with ensuites and a half bath for your guests. The thoughtful floor plan not only provides plenty of natural light and a feeling of spaciousness, but it also provide amazing outdoor living potential with front and back decks. Buyer to purchase the lot for $48,000 and contract with the builder for $251,500. Plan available with or without attached garage.
Property Type(s):
Single Family
| Last Updated | 1/15/2026 | Tract | Show Low Bluff |
|---|---|---|---|
| Year Built | 2026 | Community | Show Low |
| Garage Spaces | 2.0 | County | Navajo |
Price History
| Prior to Jan 15, '26 | $294,500 |
|---|---|
| Jan 15, '26 - Today | $299,500 |
Additional Details
| AIR | Central Air |
|---|---|
| AIR CONDITIONING | Yes |
| APPLIANCES | Dishwasher |
| AREA | Show Low |
| FIREPLACE | Yes |
| GARAGE | Yes |
| HEAT | Forced Air, Natural Gas |
| HOA DUES | 181.5 |
| INTERIOR | Double Vanity |
| LOT | 8712 sq ft |
| LOT DESCRIPTION | Corners Marked |
| LOT DIMENSIONS | 0.2 |
| STORIES | 1 |
| SUBDIVISION | Show Low Bluff |
| UTILITIES | Natural Gas Available, Natural Gas Connected, Sewer Available, Electricity Connected, Water Connected |
Contact us about this Property
| / | |
| We respect your online privacy and will never spam you. By submitting this form with your telephone number you are consenting for Jason Grimes to contact you even if your name is on a Federal or State "Do not call List". | |
Listed with West USA Realty - Show Low
©Copyright 2026, Last Updated: 1/15/26 3:42 PM PST, Listing data deemed reliable but not guaranteed.
This IDX solution is (c) Diverse Solutions 2026.


