|
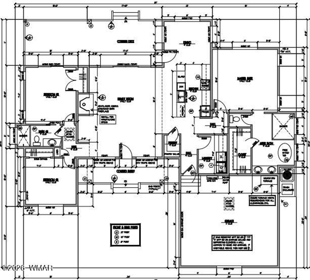
Let us build this (or similar) custom home on a gorgeous, treed lot in Torreon. This is a to-be-built spec home using the buyer's cash or construction loan. You buy the lot, and thne contract with the builder to build the home of your dreams. I help you and the builder design/customize your floor plan, select all of your low maintenance, exterior materials/colors: LP Smart Siding, Trex deck, 50 year shingles, steel railings, etc. Inside you will have fun picking out all of your custom home design elements. You'll pick your cabinets and granite countertops, the tile/stone for your fireplace/ backsplash/ shower, choose your own lighting and plumbing fixtures as well as which beautiful, high grade LVP flooring (and/or carpet), and so much more. I am here to answer all of your questions and help you along the way. If you've been thinking about a get-away or full time home in Torreon and the beautiful White Mountains, this may be the perfect way to get everything you want. A brand new, customized home to your liking, set in a community among the tall pines, with 2 18-hole golf courses, a clubhouse and 2 restaurants, pool/spa, fitness center, pickleball, family center, playground, catch and release pond and so much more. Let me know how I can help you begin your journey. See separate lot listing 258869.
Property Type(s):
Single Family
| Last Updated | 1/9/2026 | Tract | Tollgate at Torreon |
|---|---|---|---|
| Year Built | 2026 | Community | Show Low - Torreon |
| Garage Spaces | 2.0 | County | Navajo |
Additional Details
| AIR | Central Air |
|---|---|
| AIR CONDITIONING | Yes |
| APPLIANCES | Dishwasher |
| AREA | Show Low - Torreon |
| FIREPLACE | Yes |
| GARAGE | Yes |
| HEAT | Forced Air, Natural Gas |
| HOA DUES | 968 |
| INTERIOR | Breakfast Bar, Double Vanity, Eat-in Kitchen, Master Downstairs, Pantry, Soaking Tub, Vaulted Ceiling(s) |
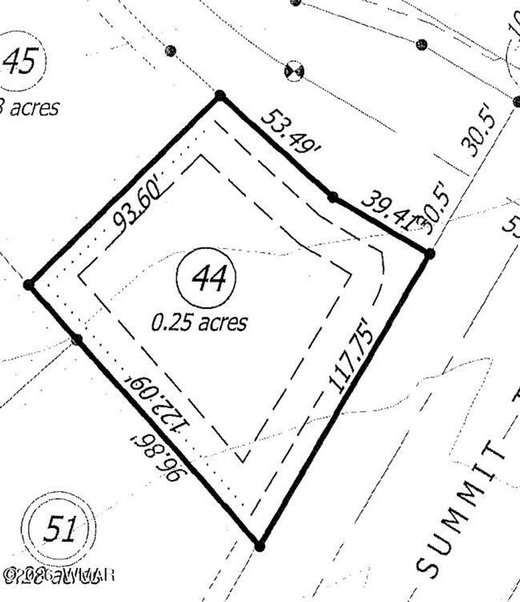
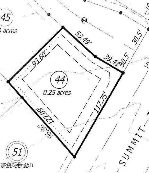
| LOT | 0.25 acre(s) |
| LOT DESCRIPTION | Wooded |
| LOT DIMENSIONS | 0.25 |
| PARKING | Garage Door Opener |
| POOL DESCRIPTION | Association |
| SUBDIVISION | Tollgate at Torreon |
| UTILITIES | Natural Gas Available, Cable Connected, Natural Gas Connected, Sewer Available, Electricity Connected, Water Connected |
Contact us about this Property
| / | |
| We respect your online privacy and will never spam you. By submitting this form with your telephone number you are consenting for Jason Grimes to contact you even if your name is on a Federal or State "Do not call List". | |
Listed with Torreon Realty
©Copyright 2026, Last Updated: 1/10/26 1:17 PM PST, Listing data deemed reliable but not guaranteed.
This IDX solution is (c) Diverse Solutions 2026.


