|
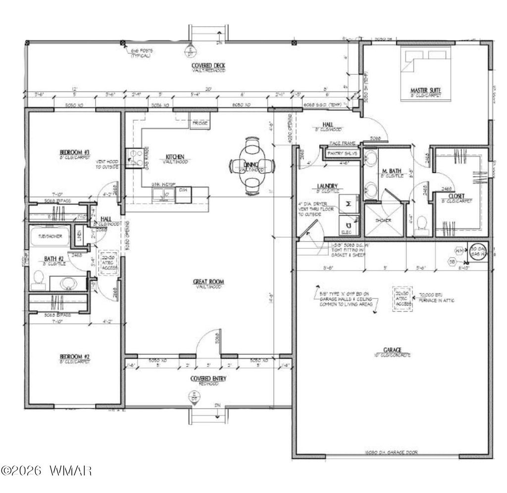
Let us build your dream home on a gorgeous lot in Torreon! Purchase the lot for $77,000, then contract with builder to build this plan - or customize it to your liking - for $498,000. Other floor plan options also available. This is a to-be-built spec using buyer's cash or construction loan. I help you and the builder design your floor plan, select exterior materials and colors, and guide you through every custom design decision along the way. This beautiful single-story plan offers 3 bedrooms, 2 bathrooms, and a 2-car garage. The vaulted great room impresses with your choice of pine T&G or faux beam ceilings, a gas fireplace with stone surround, and a sliding glass door opening to your deck with Trex decking. The kitchen features custom cabinetry, granite or quartz countertops, stainless appliances, and pendant lighting. LP SmartSide siding, 40-year shingle roof, natural gas throughout, and a 2 car garage round out this exceptional home. Torreon offers two 18-hole golf courses, two restaurants, pool and hot tub, fitness center, pickleball, playground, catch-and-release pond, and so much more. If you've been dreaming of a getaway or full-time home in the White Mountains, this may be the perfect way to get exactly what you want -- brand new, fully customized, and set among the pines. Land listing #259456
Property Type(s):
Single Family
| Last Updated | 4/2/2026 | Tract | Torreon Lakes |
|---|---|---|---|
| Year Built | 2026 | Community | Show Low - Torreon |
| Garage Spaces | 2.0 | County | Navajo |
Additional Details
| AIR | Central Air |
|---|---|
| AIR CONDITIONING | Yes |
| APPLIANCES | Dishwasher, Disposal, Electric Range, Gas Water Heater, Microwave, Refrigerator, Water Heater |
| AREA | Show Low - Torreon |
| CONSTRUCTION | Frame |
| FIREPLACE | Yes |
| GARAGE | Attached Garage, Yes |
| HEAT | Forced Air, Natural Gas |
| HOA DUES | 968 |
| INTERIOR | Pantry, Vaulted Ceiling(s) |
| LOT | 0.54 acre(s) |
| LOT DESCRIPTION | Cul-De-Sac, Wooded |
| LOT DIMENSIONS | 0.54 |
| SEWER | Private Sewer |
| STYLE | 1st Level |
| SUBDIVISION | Torreon Lakes |
| UTILITIES | Electricity Available, Water Available, Sewer Available |
Contact us about this Property
| / | |
| We respect your online privacy and will never spam you. By submitting this form with your telephone number you are consenting for Jason Grimes to contact you even if your name is on a Federal or State "Do not call List". | |
Listed with Torreon Realty
©Copyright 2026, Last Updated: 5/26/26 2:16 AM PDT, Listing data deemed reliable but not guaranteed.
This IDX solution is (c) Diverse Solutions 2026.


