|
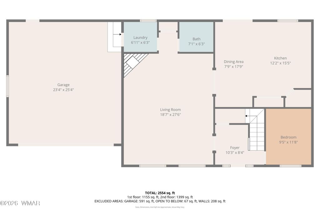
Raise a family in this spacious 2400 sf home with attached garage in the coveted High Country Pines subdivision of Heber! 3 bedrooms plus a den, 2 ½ baths. The large great room with fireplace opens to the spacious dining room/kitchen. There is an additional downstairs den that could be used as a bedroom. Laundry on 1st floor. The 2nd level features 2 guest rooms and a full bath. The expansive master bedroom with ensuite bathroom has an attached bonus room that can be used as an office, a nursery, or an ensuite relaxation area. Fully fenced, private rear yard with an RV gate on .42 acres. Central furnace with 3 additional mini-splits keep the home quite comfortable during every season.
Property Type(s):
Single Family
| Last Updated | 2/27/2026 | Tract | High Country Pines |
|---|---|---|---|
| Year Built | 2002 | Community | Heber |
| Garage Spaces | 2.0 | County | Navajo |
Additional Details
| APPLIANCES | Dishwasher, Disposal, Gas Range, Microwave, Refrigerator |
|---|---|
| AREA | Heber |
| FIREPLACE | Yes |
| GARAGE | Yes |
| HEAT | Electric, Forced Air |
| HOA DUES | 60 |
| INTERIOR | Foyer/Entry, Great Room, Mud Room, Potential Bedroom, Study/Den, Work Room |
| LOT | 0.42 acre(s) |
| LOT DIMENSIONS | irregular |
| SEWER | Septic Tank |
| STORIES | 2 |
| SUBDIVISION | High Country Pines |
| TAXES | 2367.54 |
| UTILITIES | Propane |
| ZONING | SD |
Contact us about this Property
| / | |
| We respect your online privacy and will never spam you. By submitting this form with your telephone number you are consenting for Jason Grimes to contact you even if your name is on a Federal or State "Do not call List". | |
Listed with Diane Dahlin's Pine Rim Realty
©Copyright 2026, Last Updated: 3/13/26 8:07 AM PDT, Listing data deemed reliable but not guaranteed.
This IDX solution is (c) Diverse Solutions 2026.


