|
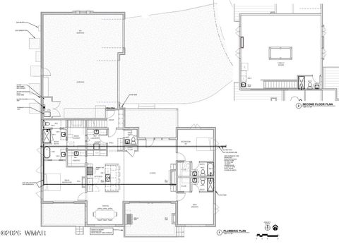
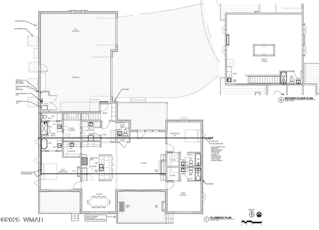
This is more than just land; it's a rare blend of luxury seclusion, modern conveniences, and breathtaking natural surroundings in a secure, gated setting. This beautiful and buildable, level lot offers a unique opportunity to build your dream home with plans being sold with the lot purchase, saving you months of design work and allowing you to break ground faster. Fully drawn and ready for the buyer to select a builder and apply for permits. Your very own modern mountain magnificence - offering a 3,255 (livable) sq foot residence thoughtfully designed in 3D Autocad to accommodate for all the desirable aspects and touches. Not only does this package give you a significant head start and dramatically speeding up your build time, but the lot itself has much to offer. Surrounded by natures finest offerings, close to Big Spring and Walnut Creek you'll have the opportunity for nature and wildlife right out of your backdoor. Nestled directly bordering US Forest Service land this property provides unparalleled privacy with the serene presence of towering pines, streams and lakes nearby. This quiet neighborhood offers a charming covered bridge gated entry and is fully equipped for easy development with paved streets and utilities at the property line. This location is close to hiking trails, Big Springs Trail, White Mountain Nature Center, as well as restaurants, shopping and community activities. Don't miss your chance to own this exceptional piece of paradise - perfect for your custom home, mountain retreat and forever escape.
Property Type(s):
Lot/Land/Acreage
| Last Updated | 1/28/2026 | Tract | The Retreat at Walnut Creek |
|---|---|---|---|
| Year Built | 0 | Community | Lakeside |
| County | Navajo |
Additional Details
| AREA | Lakeside |
|---|---|
| HOA DUES | 510 |
| LOT | 0.33 acre(s) |
| LOT DESCRIPTION | Level |
| LOT DIMENSIONS | 0.33 |
| SUBDIVISION | The Retreat at Walnut Creek |
| TAXES | 706.68 |
| UTILITIES | Natural Gas Available, Sewer Available, Electricity Available, Water Available |
| ZONING | Residential |
Contact us about this Property
| / | |
| We respect your online privacy and will never spam you. By submitting this form with your telephone number you are consenting for Jason Grimes to contact you even if your name is on a Federal or State "Do not call List". | |
Listed with Realty Executives AZ Territory - Pinetop
©Copyright 2026, Last Updated: 1/30/26 10:28 PM PST, Listing data deemed reliable but not guaranteed.
This IDX solution is (c) Diverse Solutions 2026.


