|
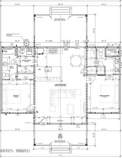
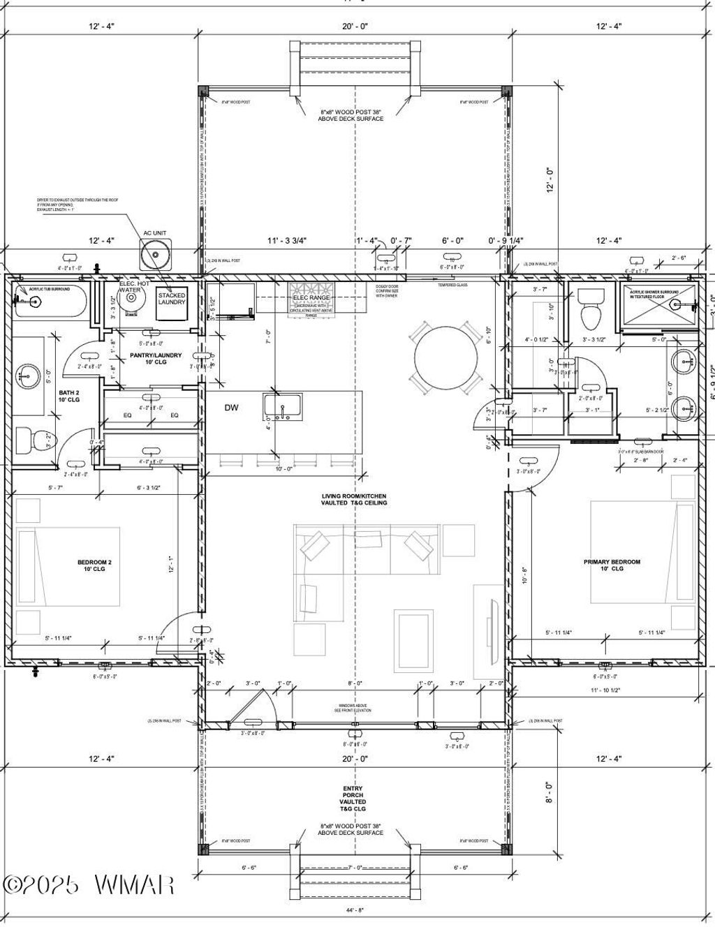
This thoughtfully designed 1,197 sq ft home offers an increasingly rare feature: two master bedrooms, each with its own private bathroom. Whether you're planning for guests, multi-generational living, or need a home office with an adjacent bath, this floor plan delivers flexibility without sacrificing comfort. The open-concept living room and kitchen features dramatic vaulted tongue-and-groove ceilings that create an airy, spacious feel, with large windows throughout that bring in abundant natural light and mountain views. The kitchen includes a convenient pantry/laundry room, ample cabinet storage, and space for a full appliance package. Both bedrooms are true retreats - the primary suite includes a walk-in closet and private bathroom with shower, while the second master offers its own closet and full bathroom with tub/shower combination. Outdoor living space includes a covered front porch with vaulted T&G ceiling and back deck for outdoor enjoyment. Construction features include durable metal roofing, LP lap siding with wood trim, and LVP flooring throughout. This is a home to be built. Buyer will purchase lot and contract with builder for the build. Any changes to this floor plan, may require additional charges.
Property Type(s):
Single Family
| Last Updated | 11/18/2025 | Tract | Show Low Bluff |
|---|---|---|---|
| Year Built | 2026 | Community | Show Low |
| County | Navajo |
Additional Details
| APPLIANCES | Dishwasher |
|---|---|
| AREA | Show Low |
| HEAT | Electric |
| HOA DUES | 181.5 |
| INTERIOR | Double Vanity, Pantry |
| LOT | 0.27 acre(s) |
| LOT DESCRIPTION | Corners Marked |
| SUBDIVISION | Show Low Bluff |
| TAXES | 88.36 |
| UTILITIES | Sewer Available, Electricity Connected, Water Connected |
Contact us about this Property
| / | |
| We respect your online privacy and will never spam you. By submitting this form with your telephone number you are consenting for Jason Grimes to contact you even if your name is on a Federal or State "Do not call List". | |
Listed with Torreon Realty
©Copyright 2025, Last Updated: 11/21/25 3:43 PM PST, Listing data deemed reliable but not guaranteed.
This IDX solution is (c) Diverse Solutions 2025.


