|
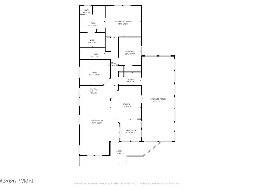
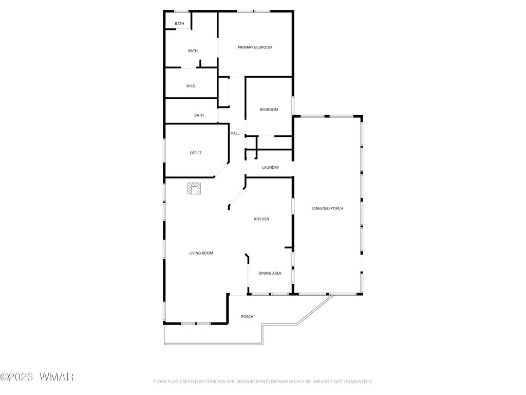
COUNTRY HOME, horses welcome! Well-maintained, spacious 3 bedroom 2 bath home is located in a quiet, beautiful area of tall pines! Interior features include a versatile, 500 s.f. Arizona room with plenty of windows and built-ins, a nicely appointed kitchen with an island and ample cabinet/counter space, and forced air gas heat plus a woodstove for comfy, economical warmth in winter. Situated on a level acre that would work well for livestock or toys (plenty of room for corrals, no HOA!), the exterior features include full RV hook-ups, multiple storage sheds (one w/power), custom ramp to the front door, full perimeter fencing, an expansive area of raised garden beds, & a chicken coop that has an automatic door that closes and locks at night to protect your feathered friends. CLICK HERE for Large structure for plants could be easily transformed into a full greenhouse for year-round use. A developed RV parking area & full hook-ups (30 amp service, water, & septic) would welcome guests or overflow, and there's a circular driveway for easy access to it all. All appliances can stay with the home, including a freezer, and the picnic table and gas grill can also convey. Please note: The manufactured home itself is 28' x 68', totaling 1904 s.f., with an addition that is estimated to be 504 s.f. that was added prior to the current owner purchasing this property - likely not a permitted addition, so please measure and inspect as needed/desired, and check out the floorplan in the Photos section, as well as the Engineering Certification in the Documents tab. Super versatile, peaceful, practical, and perfectly set up for country living!
Property Type(s):
Mobile/Manufactured
| Last Updated | 2/12/2026 | Tract | Pine Ridge Estates |
|---|---|---|---|
| Year Built | 2005 | Community | Show Low |
| County | Navajo |
Price History
| Prior to Nov 11, '25 | $399,000 |
|---|---|
| Nov 11, '25 - Jan 17, '26 | $395,000 |
| Jan 17, '26 - Feb 12, '26 | $389,000 |
| Feb 12, '26 - Today | $375,000 |
Additional Details
| AIR | Evaporative Cooling |
|---|---|
| AIR CONDITIONING | Yes |
| APPLIANCES | Dishwasher, Disposal, Dryer, Freezer, Gas Range, Gas Water Heater, Microwave, Refrigerator, Washer, Water Heater |
| AREA | Show Low |
| EXTERIOR | RV Hookup |
| FIREPLACE | Yes |
| HEAT | Forced Air, Propane, Wood |
| INTERIOR | Breakfast Bar, Double Vanity, Vaulted Ceiling(s) |
| LOT | 1.01 acre(s) |
| LOT DESCRIPTION | Landscaped |
| LOT DIMENSIONS | 1.01 |
| SEWER | Septic Tank |
| STORIES | 1 |
| STYLE | Mobile w/Add-On |
| SUBDIVISION | Pine Ridge Estates |
| TAXES | 869 |
| UTILITIES | Electricity Available, Water Available, Phone Available |
| ZONING | Municipal |
Contact us about this Property
| / | |
| We respect your online privacy and will never spam you. By submitting this form with your telephone number you are consenting for Jason Grimes to contact you even if your name is on a Federal or State "Do not call List". | |
Listed with West USA Realty - Snowflake
©Copyright 2026, Last Updated: 3/9/26 9:42 PM PDT, Listing data deemed reliable but not guaranteed.
This IDX solution is (c) Diverse Solutions 2026.


