|
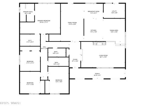
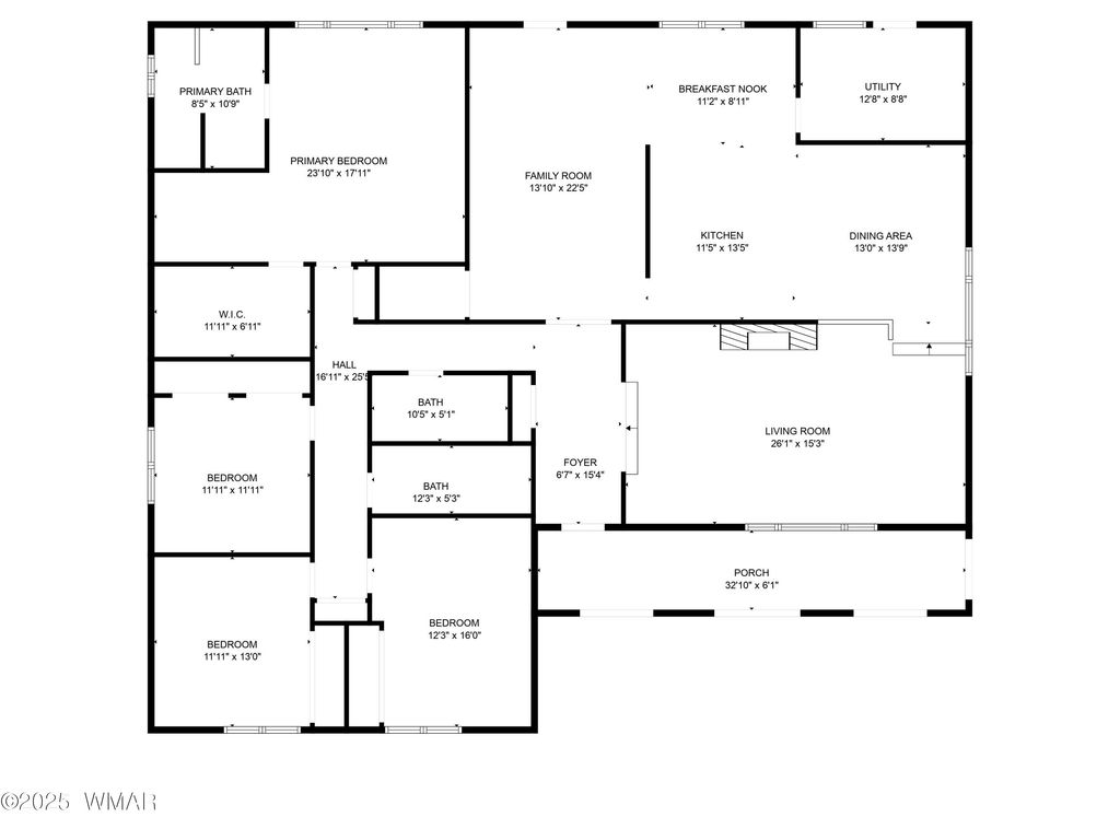
Holbrook does not have many homes this size ... with a total of of 2937 sq ft 4 bedrooms, 3 bathrooms, spacious living room, den, breakfast area and open dine in kitchen! This home has soo much potential! Covered front porch with large window leads you into a foyer. Front room is spacious yet cozy with a fireplace that leads into an open dining room & kitchen ... 2 parcels included in this sale for a total lot size of 0.44 with space for expansion or garden. Schedule to see this home today!!
Property Type(s):
Single Family
| Last Updated | 11/13/2025 | Tract | Mesa Bonita |
|---|---|---|---|
| Year Built | 1975 | Community | Holbrook |
| County | Navajo |
Price History
| Prior to Nov 13, '25 | $271,000 |
|---|---|
| Nov 13, '25 - Today | $249,000 |
Additional Details
| AIR | Central Air |
|---|---|
| AIR CONDITIONING | Yes |
| APPLIANCES | Dishwasher |
| AREA | Holbrook |
| CONSTRUCTION | Brick |
| EXTERIOR | Rain Gutters |
| HEAT | Forced Air, Natural Gas |
| INTERIOR | Double Vanity, Master Downstairs, Soaking Tub |
| LOT | 0.44 acre(s) |
| LOT DIMENSIONS | 70' X 135' |
| SUBDIVISION | Mesa Bonita |
| TAXES | 1087.98 |
| UTILITIES | Natural Gas Available, Cable Connected, Natural Gas Connected, Sewer Available, Electricity Connected, Water Connected |
| ZONING | R-7 |
Contact us about this Property
| / | |
| We respect your online privacy and will never spam you. By submitting this form with your telephone number you are consenting for Jason Grimes to contact you even if your name is on a Federal or State "Do not call List". | |
Listed with SEI Real Estate Professionals - Holbrook
©Copyright 2025, Last Updated: 12/10/25 7:29 PM PST, Listing data deemed reliable but not guaranteed.
This IDX solution is (c) Diverse Solutions 2025.


