|
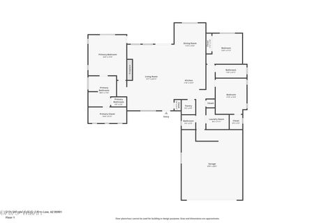
Stunning new custom home in the gated community of Eagle Mountain Estates! This beautifully designed single-level, 2,075 sq ft home is nestled among the tall pines just minutes from Show Low"”offering the perfect combination of privacy and convenience. Featuring 3 bedrooms, 2 bathrooms, and a split floor plan, the home showcases an open-concept great room with vaulted ceilings, wood frame construction, and durable laminate plank flooring throughout. The living area is centered around a striking slate gas fireplace with built-in shelving extending to the ceiling"”creating a warm and stylish focal point. The kitchen is an entertainer's dream, featuring a large island with dramatic waterfall quartz countertops and built-in stainless steel appliances, including a gas range, microwave, dishwasher, and disposal. The guest bathroom and laundry room both feature tile extending to the ceiling for a sleek, finished look. The primary suite offers a private retreat with a sliding barn door, stand-alone soaking tub, dual vanities, and a walk-in glass shower. Additional highlights include a covered deck for outdoor relaxation, an attached 2-car garage, and a spacious laundry/utility room. Located on paved streets and surrounded by mature pines, the property includes natural gas, city water and sewer (metered), and electric service. Don't miss this opportunity to own a quality-built home in one of Show Low's premier gated communities!
Property Type(s):
Single Family
| Last Updated | 11/19/2025 | Tract | Eagle Mountain Estates |
|---|---|---|---|
| Year Built | 2025 | Community | Show Low |
| County | Navajo |
Price History
| Prior to Nov 19, '25 | $674,000 |
|---|---|
| Nov 19, '25 - Today | $649,900 |
Additional Details
| AIR | Central Air |
|---|---|
| AIR CONDITIONING | Yes |
| APPLIANCES | Dishwasher |
| AREA | Show Low |
| HEAT | Forced Air |
| HOA DUES | 120 |
| INTERIOR | Breakfast Bar, Double Vanity, Eat-in Kitchen, Soaking Tub, Vaulted Ceiling(s) |
| LOT | 9148 sq ft |
| LOT DESCRIPTION | Landscaped |
| SUBDIVISION | Eagle Mountain Estates |
| TAXES | 186.48 |
| UTILITIES | Natural Gas Available, Natural Gas Connected, Sewer Available, Electricity Connected, Water Connected |
Contact us about this Property
| / | |
| We respect your online privacy and will never spam you. By submitting this form with your telephone number you are consenting for Jason Grimes to contact you even if your name is on a Federal or State "Do not call List". | |
Listed with West USA Realty - Show Low
©Copyright 2026, Last Updated: 1/9/26 8:22 PM PST, Listing data deemed reliable but not guaranteed.
This IDX solution is (c) Diverse Solutions 2026.


